Der südliche Rand von Habichtswald-Dörnberg, wo das Gelände in Richtung Herkules ansteigt, ist ein hervorragender Platz für Naturliebhaber, die gerne mitten im Naturpark Habichtswald und gleichzeitig gut an die Stadt Kassel angebunden leben möchten. Auch die Maisonettewohnung, die wir Ihnen hiermit vorstellen dürfen, liegt nur ein paar Schritte vom Wald entfernt und bietet Ihnen eine traumhafte Aussicht auf den Hohen Dörnberg in nördlicher Richtung.
Das Haus beherbergt insgesamt drei Wohneinheiten auf drei Etagen und wurde erst im Jahr 2018 erbaut. Erst vor drei Jahren wurde die angebotene Wohnung erneut aufwendig und hochwertig renoviert und neu ausgestattet, und zwar inklusive der WCs, der Waschtische und Teile der Küchen. Der Außenbereich wurde erst in den letzten beiden Jahren fertiggestellt, sodass Sie eine fast neue und kontinuierlich auf den neuesten Stand gehaltene Immobilie erwerben könnten.
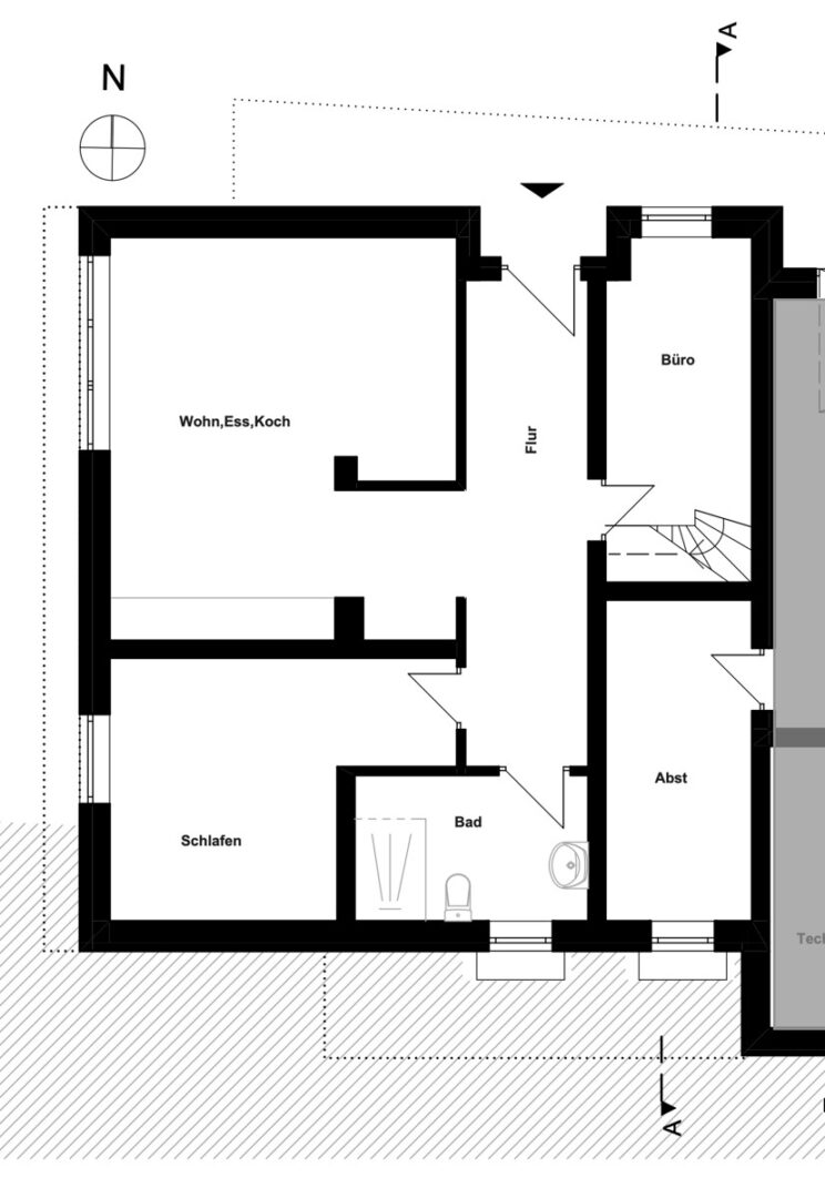
Die ursprünglich als zwei Wohnungen geplante und später zusammengelegte, nun insgesamt gut 167 Quadratmeter große Einheit überzeugt durch Ihre ausgesprochen helle und offene, auf die schöne umgebende Landschaft hin ausgerichtete Atmosphäre. Sie verfügt über insgesamt fünf mit Parkett ausgestattete Zimmer und zwei Badezimmer und ein WC. Da beide Etagen über eine eigene Eingangstür verfügen und jeweils eine eigene Küchenzeile installiert wurde, bietet sich neben der Nutzung als klassische Familienwohnung auch eine jetzt oder später erfolgende erneute Teilung und damit etwa die Nutzung für mehrere Generationen oder als Homeoffice an.
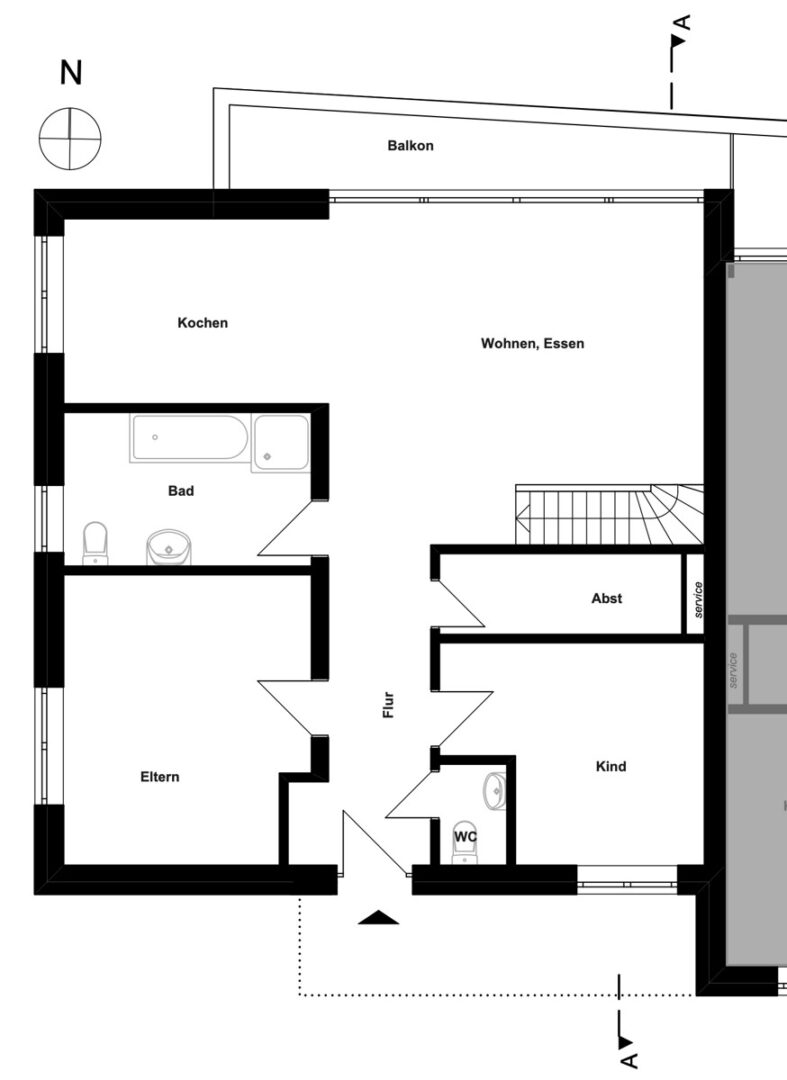
Auf der oberen Ebene der Wohnung befindet sich ein großer Wohn-, Ess- und Kochbereich mit einer gut ausgestatteten Küche aus dem Jahr 2022 sowie Zugang zum Balkon. Von hier aus genießen Sie nicht nur die Ruhe, sondern vor allem den Blick über das Dorf hinweg ins Grüne zum Hohen Dörnberg. Weiterhin befinden sich auf dieser Etage zwei flexibel nutzbare Räume sowie ein Badezimmer mit Wanne und Dusche, ein WC und ein Abstellraum.
Auf der unteren Ebene finden Sie neben einem weiteren möglichen Schlafzimmer und einem kleineren Raum vor allem den fast 27 Quadratmeter großen zweiten Hauptraum mit großer Fensterfront und Zugang zur nach Westen ausgerichteten und teilweise überdachten Terrasse sowie zum Garten, in dem Sie den ganzen Tag über Sonne haben.
Der Außenbereich ist in Terrassen angelegt, sodass Sie hier trotz Hanglage des Grundstückes eine ebene Rasenfläche vorfinden. Darüber hinaus wurden erst in den letzten Jahren zahlreiche Bepflanzungen durchgeführt, und neben vielen Stauden und Nadelbäumen wird es hier in den nächsten Jahren bei guter Pflege einen echten Obstgarten mit Äpfeln, Kirschen und vor allem vielen Beeren zum Naschen bzw. zum nordhessischen Schnucken geben.




